1. 단지 개요 정리
| 항목 | 내용 |
|---|---|
| 위치 | 서울 강북구 삼양로19길 25 |
| 단지명 | 래미안트리베라1차 |
| 세대수 | 212 |
| 준공일 | 2010년 5월 |
| 공급구분 | 공공임대(50년형) |
| 난방방식 | 개별가스난방 |
| 주차대수 | 1,560 |
| 승강기 | 전 동 설치 |
👉 장점: 교통·생활 인프라 우수, 장기 거주 안정성
👉 주의: 오래된 단지 특성상 관리비·시설 상태 확인 필수
2. 임대 조건 (공공임대 50년형)
래미안트리베라1차는 50년 공공임대로 공급되는 단지입니다.
이는 분양전환 없는 장기 거주형 임대주택입니다.
| 평수 | 보증금 | 월세 |
|---|---|---|
| 39㎡ | 2,919만원 | 30만원 |
| 44㎡ | 3,293만원 | 33만원 |
✅ 장점: 50년까지 안정적 거주 가능 → 사실상 평생 주거 안정
✅ 주의: 분양전환이 불가하므로 내 집 마련 목적이라면 다른 유형(10년·장기전세)과 비교 필요
3. 신청 자격
| 구분 | 기준 |
|---|---|
| 무주택 요건 | 세대 전원이 무주택자 |
| 소득 기준 | 도시근로자 월평균 소득 90% 이하(1인) 도시근로자 월평균 소득 80% 이하(2인) |
| 자산 기준 | 총 자산 3억 1,000만 원 이하 |
| 자동차 기준 | 차량가액 3,683만 원 이하 |
4. 선정 방법
| 순위 | 조건 |
|---|---|
| 1순위 | 청약통장 2년이상, 24회이상 |
| 2순위 | 청약통장 6개월이상, 6회이상 |
| 3순위 | 1,2순위에 해당되지 않는자 |
| 선정 방식 | 순위 → 추첨 |
5. 입주 및 대기
| 항목 | 내용 |
|---|---|
| 운영 방식 | 예비입주자 순번제 |
| 입주 시기 | 공가 발생 시 순번에 따라 계약 |
| 대기 기간 | 강남권 평균 2~3년 이상 (소형은 상대적으로 짧음) |
| 조회 방법 | 마이홈(www.myhome.go.kr) → “공공임대” 검색 후 단지별 확인 |
6. 생활 편의
| 항목 | 내용 |
|---|---|
| 교통 | 5호선 명일역 도보 7분 내외, 올림픽대로·천호대로 접근 용이강남·잠실 20분 내 이동 가능, 버스노선 다양 |
| 편의시설 | 이마트 명일점, 현대백화점 천호점, 강동경희대병원, 고덕근린공원 인근 |
| 주거환경 | 2011년 입주 래미안 브랜드 단지(1,600세대 규모), 조경·커뮤니티시설 우수피트니스센터·독서실·어린이놀이터 등 주민 편의시설 다양 |
| 교육환경 | 명일초·명일중·한영고·명일여고 등 우수 학군 인접, 학원가 밀집 지역 |
| 생활여건 | 역세권 + 학세권 + 숲세권 입지, 생활 인프라 완비, 조용하고 안정적인 주거 환경 |
7. 단지 정보
7-1. 단지교통망
7-2. 단지조감도

7-3. 단지배치도
정보없음
7-4. 동호수배치도
정보없음
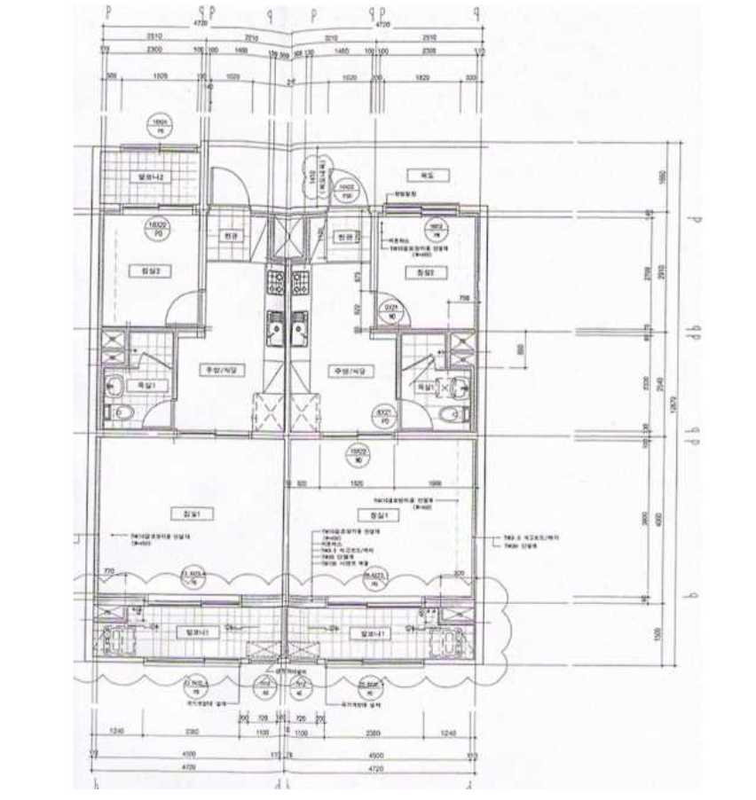
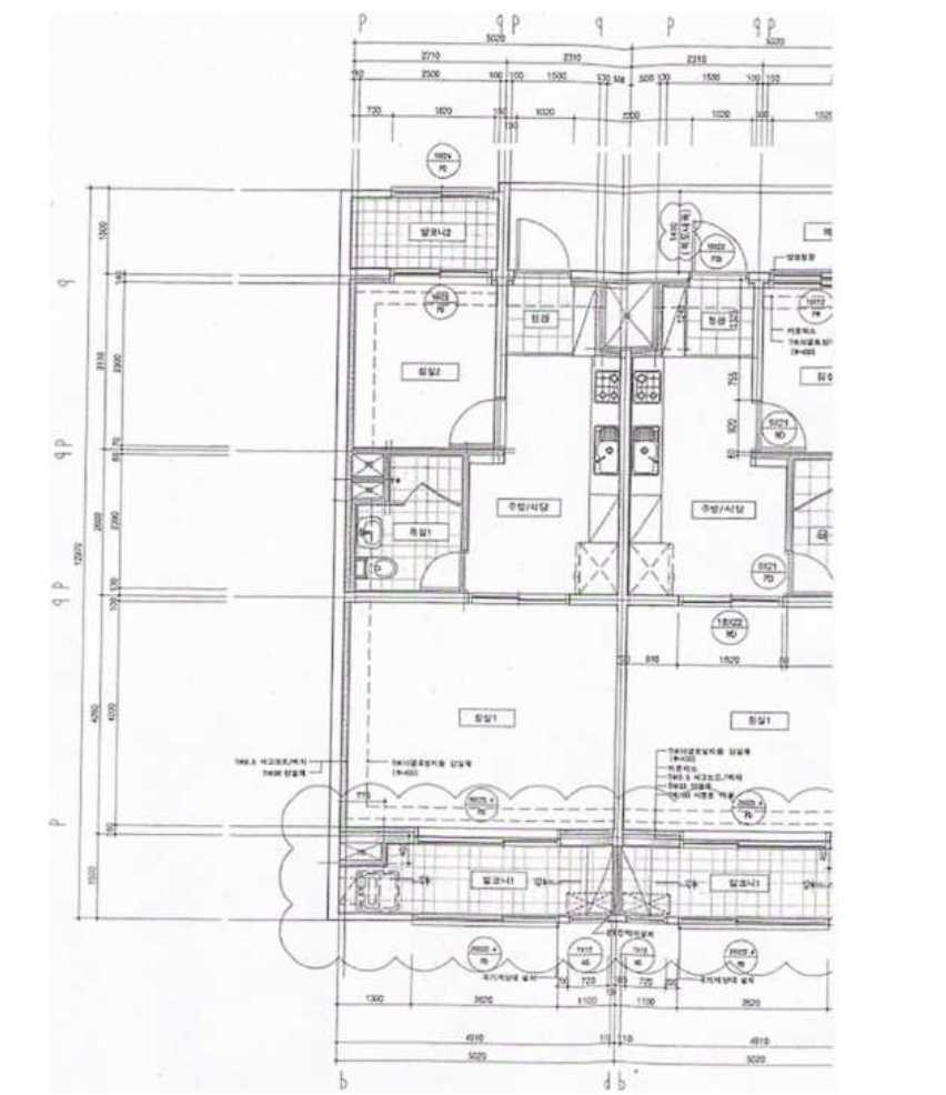
7-5. 주택평면도
39형

44형

8. 모집공고 보기
9. 자주 묻는 질문 (FAQ)
| 질문 | 답변 |
|---|---|
| Q1. 분양전환 되나요? | ❌ 불가 (50년 공공임대는 영구 임대 성격) |
| Q2. 당첨되면 바로 입주하나요? | ❌ 공실이 나야 순번대로 입주 |
| Q3. 관리비는 어느 정도인가요? | 노후 단지 특성상 신축 대비 다소 높음 (월 5~10만 원대 예상) |
| Q4. 중도 퇴거하면 보증금은? | 계약 해지 후 정산하여 반환됨 |
10.요약
| 항목 | 내용 |
|---|---|
| 위치 | 서울특별시 강동구 명일동 65-1 일대 (명일1주공 재건축) |
| 교통 | 5호선 명일역 도보권, 올림픽대로·천호대로 접근 용이, 강남·잠실권 20분 내 이동 |
| 생활편의 | 백화점, 마트, 병원, 학교, 공원 등 생활 인프라 풍부 |
| 주거환경 | 래미안 브랜드 대단지로 관리체계·조경·보안 우수, 녹지율 높음 |
| 특징 | 학세권·역세권·브랜드 대단지, 명문학교와 인접해 교육 여건 우수 |
| 유의사항 | 분양가·임대료 중상 수준, 경쟁률 높음, 출퇴근 시간 교통 혼잡 가능 |
임대주택 주요 정보 알아보기
인터넷 신청방법
청약 관련 정보
주택 관련 정보 더보기
임대문의
- 전국 대표전화 1600-1004
- 운영시간 평일 09:00~18:00 (점심시간 12:00~13:00)
- 토,일 공휴일 휴무
예비입주자 당첨 명단 조회
예비입주자 당첨 명단 조회는 LH청약 홈페이지와 ARS(1661-7700)을 통해 당첨 발표일로부터 30일간 확인할 수 있습니다.
청약 > 청약결과 확인 > 당첨/낙찰 결과조회 에서 로그인 후 확인이 가능합니다.
당첨 사실을 확인하지 못하여 계약 체결을 못한 경우 책임은 신청자 본인에게 있습니다.
예비입주자 대기현황 조회
임대주택에 경우 바로 당첨 후 입주 하는 것이 아니라, 예비입주자 순번을 부여받고 순차적으로 공실이 나면 입주를 하게 됩니다.
당첨되기전에, 내가 청약한 주택에 입주 대기자수를 확인해보고, 내가 언제쯤 입주할지를 가늠해볼 수 있습니다.
예비입주자 대기현황(마이홈)에서 해당 단지를 검색하면, 입주 대기자수를 확인이 가능합니다.














