서울 강북구 SK북한산시티 LH 공공임대 32형

1. 단지 개요 정리

항목내용
위치서울 강북구 솔샘로 174
단지명SK북한산시티
세대수1,497
준공일2004년 5월
공급구분공공임대(50년형)
난방방식개별난방
주차대수4,804
승강기전 동 설치

👉 장점: 교통·생활 인프라 우수, 장기 거주 안정성
👉 주의: 오래된 단지 특성상 관리비·시설 상태 확인 필수


2. 임대 조건 (공공임대 50년형)

SK북한산시티는 50년 공공임대로 공급되는 단지입니다.
이는 분양전환 없는 장기 거주형 임대주택입니다.

평수보증금월세
32㎡1,220만원17만원

장점: 50년까지 안정적 거주 가능 → 사실상 평생 주거 안정
주의: 분양전환이 불가하므로 내 집 마련 목적이라면 다른 유형(10년·장기전세)과 비교 필요



3. 신청 자격

구분기준
무주택 요건세대 전원이 무주택자
소득 기준도시근로자 월평균 소득 90% 이하(1인)
도시근로자 월평균 소득 80% 이하(2인)
자산 기준총 자산 3억 1,000만 원 이하
자동차 기준차량가액 3,683만 원 이하


 


4. 선정 방법

순위조건
1순위청약통장 2년이상, 24회이상
2순위청약통장 6개월이상, 6회이상
3순위1,2순위에 해당되지 않는자
선정 방식순위 → 추첨

5. 입주 및 대기

항목내용
운영 방식예비입주자 순번제
입주 시기공가 발생 시 순번에 따라 계약
대기 기간강남권 평균 2~3년 이상 (소형은 상대적으로 짧음)
조회 방법마이홈(www.myhome.go.kr) → “공공임대” 검색 후 단지별 확인



6. 생활 편의

항목내용
교통4호선 수유역·미아역 차량 5분 거리, 내부순환로·동부간선도로 접근 용이강북구청·종로·강남권으로 이동 편리
편의시설롯데마트 미아점, 강북구청, 삼양사거리 상권, 북한산국립공원 인접
주거환경대규모 단지(약 3,700세대), 녹지율 높고 조경·단지 관리 수준 우수북한산 조망 가능 세대 다수, 단지 내 산책로·커뮤니티시설 풍부
교육환경번동초·수유중·창문여고 등 학군 인접, 학원가 접근성 양호
생활여건숲세권 + 대단지형 안정 주거지, 공기 질·조망 우수, 관리비 합리적

7. 단지 정보

7-1. 단지교통망

7-2. 단지조감도

7-3. 단지배치도

정보없음

7-4. 동호수배치도

정보없음

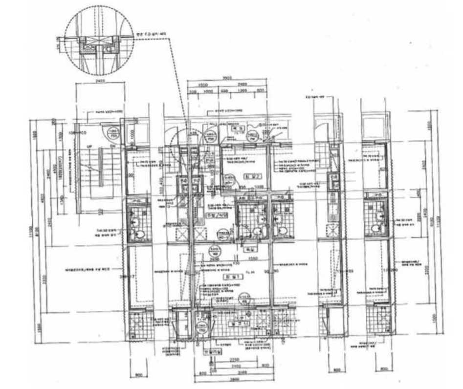
7-5. 주택평면도

32형



8. 모집공고 보기


9. 자주 묻는 질문 (FAQ)

질문답변
Q1. 분양전환 되나요?❌ 불가 (50년 공공임대는 영구 임대 성격)
Q2. 당첨되면 바로 입주하나요?❌ 공실이 나야 순번대로 입주
Q3. 관리비는 어느 정도인가요?노후 단지 특성상 신축 대비 다소 높음 (월 5~10만 원대 예상)
Q4. 중도 퇴거하면 보증금은?계약 해지 후 정산하여 반환됨




10.요약

항목내용
위치서울특별시 강북구 번동 445 일대 (북한산 인근)
교통4호선 수유역·미아역 인접, 내부순환로·동부간선도로 접근 용이
생활편의대형마트, 병원, 학교, 공원 등 생활 인프라 풍부
주거환경대규모 단지로 조경·보안·커뮤니티시설 우수, 북한산 조망 가능
특징자연친화적 숲세권 대단지, 공기 질·조망·생활환경이 모두 쾌적한 주거지
유의사항출퇴근 시간 교통 혼잡, 일부 세대 노후화 진행, 경사 지역 접근성 유의


임대주택 주요 정보 알아보기

 

인터넷 신청방법

 

청약 관련 정보

 

주택 관련 정보 더보기

 

 

임대문의

  • 전국 대표전화 1600-1004
  • 운영시간 평일 09:00~18:00 (점심시간 12:00~13:00)
  • 토,일 공휴일 휴무

 

예비입주자 당첨 명단 조회

예비입주자 당첨 명단 조회는 LH청약 홈페이지와 ARS(1661-7700)을 통해 당첨 발표일로부터 30일간 확인할 수 있습니다.

청약 > 청약결과 확인 > 당첨/낙찰 결과조회 에서 로그인 후 확인이 가능합니다.

당첨 사실을 확인하지 못하여 계약 체결을 못한 경우 책임은 신청자 본인에게 있습니다.

 

예비입주자 대기현황 조회

임대주택에 경우 바로 당첨 후 입주 하는 것이 아니라, 예비입주자 순번을 부여받고 순차적으로 공실이 나면 입주를 하게 됩니다.

당첨되기전에, 내가 청약한 주택에 입주 대기자수를 확인해보고, 내가 언제쯤 입주할지를 가늠해볼 수 있습니다.

예비입주자 대기현황(마이홈)에서 해당 단지를 검색하면, 입주 대기자수를 확인이 가능합니다.